L型电动葫芦龙门吊是单主梁形式的龙门吊,一般是包厢形式,外形结构在侧面看像字母L,这种类型龙门吊应用比较少,小编为大家介绍下5吨L型单梁龙门吊技术参数。
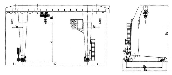
L型电动葫芦单梁龙门吊结构图:

5吨L型电动葫芦单梁龙门吊技术参数表:
| 起重机 | t | 5 | ||||
| 跨度 | m | 16 | 20 | 30 | ||
| 起升高度 | m | 6 9 | ||||
| 运行机构 | 运行速度 | 地面 | m/min | 20 | ||
| 司机室 | 20 30 40 | |||||
| 电动机 | 地面 | 型号/kw | YZR132M2-6/4X2 | YZR160M1-6/6.3x2 | ||
| 司机室 | ||||||
| 减速器 | ZSC400 | ZSC600 | ||||
| 车轮直径 | mm | 400 | 500 | |||
| 电动葫芦 | 型号 | CD1 MD1 | ||||
| 起升速度 | m/min | 8 8/0.8 | ||||
| 运行速度 | m/min | 20 | ||||
| 电动机 | 起升 | 型号/kw | ZD141-4/7.5 ZDS10.8/7.5 | |||
| 运行 | ZDY121-4/0.8 | |||||
| 工作制度 | A5 | |||||
| 荐用钢轨 | P38 P43 | |||||
| 电源 | 三相交流 380V 50Hz | |||||
| 起重机质量 | 地面 | kg | 16500 | 20000 | 26500 | |
| 司机室 | kg | 17500 | 21000 | 27500 | ||
| 最大轮压 | kN | 80 | 90 | 103 | ||
| 基本尺寸 | L1 | mm | 5000 | 6500 | 9000 | |
| L2 | mm | |||||
| H1 | mm | 1120 | ||||
| H2 | mm | 900 | 1000 | 1250 | ||
| H3 | mm | 8050/11050 | 8150/11150 | 8400/11400 | ||
| B1 | mm | 6000-7500 | 6000-7500 | 6000-7500 | ||
| B2 | mm | 4550-6050 | 4550-6050 | 4550-6050 | ||
| S1 | mm | 4600 | 6100 | 8500 | ||
| S2 | mm | 4600 | 6100 | 8500 | ||
本样所提供重量为设计值,制造值+15%
相关文章推荐:
5吨单梁龙门吊技术参数
10吨MH型电动葫芦单梁龙门吊技术参数
5吨LD型单梁行车技术参数

